「ハウス型快適トイレ ウォッシャブルハウス|仮設トイレ|株式会社オーディーテック」のメーカーへの問い合わせはこちらから
ハウス型快適トイレ ウォッシャブルハウス|仮設トイレ|株式会社オーディーテック

ウォッシャブルハウスシリーズ
概要
- 快適トイレに対応
国土交通省が定める「快適トイレ」に求める仕様と付属品
①~⑰項目全てに対応可能(一部オプション)。
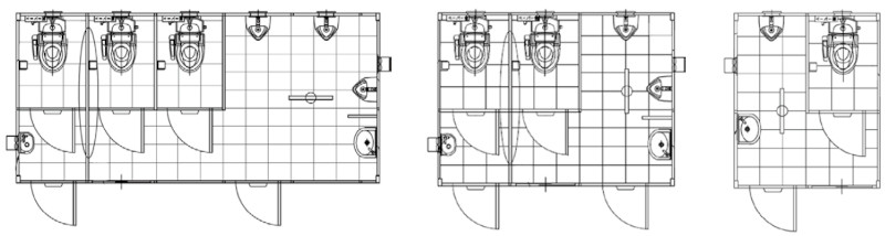
- 間取り変更可能
大便器・小便器・手洗器・シャワー室等の必要数に応じて間取りを変更することが可能。
また、窓や換気扇、入口ドアの位置変更や、利用規模に応じて、トイレハウスの連棟も可能。
他にも現場で働く女性を応援するため、「音姫ウォシュレット」や「ナンバーキー」が標準搭載の「さくらシリーズ」も展開している。
- 水洗式・汲み取り式 両方に対応
汲み取り式の場合は、超節水型の圧送便器「シャトレ」を使用。
従来の汲み取り式仮設トイレでは、便器の下に臭いの元となる便槽があったが、「シャトレ」を使用することにより便器と便槽を切り離し、洗浄後には便器内に水を張り、臭いをシャットアウトする。
このため水洗式と同じ感覚で使用できる。

ウォッシャブルハウス解説動画
吸引圧送水洗便器【シャトレ】

シャトレ解説動画
この電子カタログで紹介している製品
「ハウス型快適トイレ ウォッシャブルハウス|仮設トイレ|株式会社オーディーテック」のメーカーへの問い合わせはこちらから