電子カタログ

「YKO型高規格量水標|水文調査|株式会社𠮷田機工岡山」のメーカーへの問い合わせはこちらから

YKO型高規格量水標|水文調査|株式会社𠮷田機工岡山

設置事例
設置事例2
設置事例
設置事例3

 

概 要

視認性と耐久性を兼ね備えたYKO型高規格量水標である。
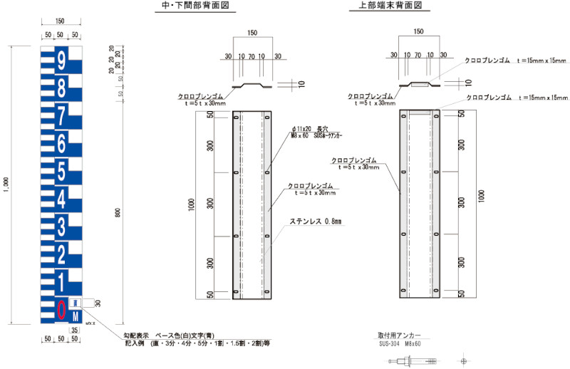
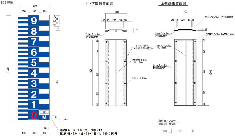
基板材質には、従来のアルミや樹脂に代えてステンレス(t=0.8㎜)を採用している。
これにより、橋脚などの構造物への設置においても容易に取り付けが可能である。
 
また、基板裏面にはクロロプレンゴムを施しており、設置面との密着性が向上している。
このためベース材を必要とせず、施工性の向上にも寄与する構造となっている。
 
目盛の印刷シートには、耐候性に優れた反射グラフィックフィルムを採用した。
これにより耐用年数は約10年と、長期間にわたり安定した視認性を維持することができる。
 
さらに、橋脚などの構造物に設置する場合でも、固定には SUSアンカーM6×45を採用し、鉄筋のかぶりを損なうことなく施工でき、安全性にも配慮している。
 
汽水域・海水域仕様では、貝類などの水生生物の付着を抑制する機能を備えている。
フジツボや牡蠣などの貝類の固着を防止し、長期にわたり良好な視認性と維持管理性を確保する。
 
●意匠登録商品
●特許取得出願中(2026年3月現在)

 

150㎜幅
150㎜幅
300㎜幅
300㎜幅

 

品名 規格 参考価格(円 / 単位・税別) 用途 備考
YKO 型高規格量水標 SUS-304 0.8t × 150㎜× 1000㎜ 46,000 構造物仕様 SUS-304 オールアンカー付
上端部 EXT 150 2,000
YKO 型高規格量水標 SUS-304 0.8t × 300㎜× 1000㎜ 64,000 構造物仕様 SUS-304 オールアンカー付
上端部 EXT 300 3,000

 

海水仕様高規格量水標 SUS-316 2.0t × 150㎜× 1000㎜ 83,000 構造物仕様 SUS-316 オールアンカー付
上端部 EXT 150 2,000
海水仕様高規格量水標 SUS-316 2.0t × 300㎜× 1000㎜ 114,000 構造物仕様 SUS-316 オールアンカー付
上端部 EXT 300 3,000
 

この電子カタログで紹介している製品

YKO型高規格量水標|株式会社吉田機工岡山

「YKO型高規格量水標|水文調査|株式会社𠮷田機工岡山」のメーカーへの問い合わせはこちらから

株式会社吉田機工岡山 メーカーの製品一覧 >

住所 〒 700-0975 岡山県岡山市北区今3-22-3 TEL 086-243-7221 FAX 086-243-8654
HP http://www.yoshida-kikou-okayama.co.jp/

「YKO型高規格量水標|水文調査|株式会社𠮷田機工岡山」

「調査試験」の新着電子カタログ

「調査試験」の他のカテゴリー

TOP